Investice v srdci Českého ráje – areál tří chat s fungujícím provozem
Na klidném okraji obce Březka, přímo u rybníka Žabák, se nachází menší rekreační areál tvořený třemi samostatnými chatami. Lokalita nabízí výjimečné spojení přírody a dostupnosti – vstup do Prachovských skal je vzdálen jen 2 km.
Nemovitost byla dokončena v roce 2019 a od té doby je úspěšně provozována jako celoroční ubytování se stabilní klientelou.
Každý objekt funguje plně samostatně a poskytuje komfortní zázemí pro rekreaci i krátkodobé pronájmy. Součástí všech chat je vlastní kuchyň, koupelna, obytný prostor, ložnice a krytá terasa. Vybavení odpovídá současným nárokům na pohodlí – podlahové topení, krbová kamna, Wi-Fi připojení, televize i kompletně zařízené kuchyně včetně spotřebičů a kávovaru Nespresso. Venkovní zázemí doplňují bazény se slanou vodou, solární sprchy, grilovací místo a kolárna.
Areál je koncipován tak, aby každá chata měla dostatek soukromí. Umístění na konci obce, obklopené zelení a s výhledem na vodní plochu, vytváří velmi klidné prostředí bez rušivých vlivů.
vyhledávaná turistická oblast s vysokou návštěvností
dlouhodobě fungující pronájem s dobrou obsazeností
tři samostatné objekty (kolaudace 2019)
kapacita celkem 10+1 lůžek
rozsáhlý pozemek (2 455 m²) v kontaktu s přírodou
vlastní parkování až pro 9 aut
zavedená značka včetně online prezentace
potenciál dalšího rozšíření (např. wellness, glamping)
možnost plynulého převzetí provozu
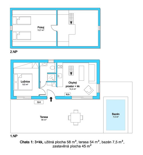
Chata 1 nabízí dispozici 3+kk a 58 m² užitné plochy. K dispozici je velkorysá terasa (54 m²) a vlastní zapuštěný bazén.
Chata 2 je nejprostornější (4+kk, 73 m²). Obytný prostor přirozeně navazuje na terasu (48 m²) s výhledem do zahrady. Samozřejmostí je i vlastní bazén.
Chata 3 (2+kk, 47 m²) představuje kompaktní variantu ideální pro menší skupiny či páry. Disponuje terasou (46 m²) a vlastním bazénem.
Oblast patří mezi nejatraktivnější části Českého ráje a nabízí široké možnosti využití:
Prachovské skály (2 km)
Jinolické rybníky (1 km)
Jičín (8 km) – kompletní služby a infrastruktura
hrad Trosky (11 km)
řada historických památek v okolí (Hrubá Skála, Kost, Valdštejn, Dětenice)
turistika, cyklistika, koupání, rybaření i houbaření
rodinné atrakce včetně Šťastné země nebo Rumcajsova Jičína
Lokalita je dobře dostupná z větších měst:
Praha, Liberec i Hradec Králové do 90 minut
restaurace v docházkové vzdálenosti (cca 200 m)
základní obchod 3 km
kompletní občanská vybavenost v Jičíně
Areál je plně funkční a připravený k okamžitému převzetí bez nutnosti dalších investic. Využití je flexibilní – od čistě investičního záměru přes rodinné podnikání až po kombinaci s vlastním rekreačním využitím.
Financování je možné prostřednictvím hypotečního úvěru. Detailní ekonomické i technické informace rádi poskytneme vážným zájemcům.
užitná plocha: 178 m²
zastavěná plocha: 145 m²
pozemek: 2 455 m²
konstrukce: cihlová novostavba
podlažnost: 2 podlaží
vytápění: elektrické (lokální)
voda: vlastní zdroj
odpad: ČOV pro celý areál
elektřina: 230 V
energetická náročnost: třída E (dle vyhlášky č. 264/2020 Sb.)
CENA:INFO U MAKLÉŘE
Jmenuji se Aleš Nachtnebl a narodil jsem se v Jablonci nad Nisou, kde žiji a mám to tu rád. Profesi realitního makléře se věnuji víc jak 20 let a dělám ji s radostí! Je pestrá, potkávám při ní zajímavé lidi a podívám se na různá místa.
Pro své klienty chci být vždy oporou, pomyslným parťákem a průvodcem při řešení všech problémů spojených s daným obchodem s nemovitostmi.
Při prodeji nemovitosti používám nejmodernější nástroje a postupy : staging a úpravu nemovitosti, profesionální fotografie, videoprohlídky, záběry z dronu, 3D plánky, půdorys nemovitosti, vlastní webové stránky nemovitosti, propagaci na sociálních sítích (facebook, Instagram, youtube atd.), a elektronickou AUKCI nemovitosti.
Všechny tyto moderní techniky a nástroje zajistí RYCHLEJŠÍ PRODEJ a ZA VYŠŠÍ CENU.
V realitách se pohybuji od roku 1998. I mé předchozí pracovní aktivity byly spojené s úctou a profesionálním přístupem ke klientům.
Pokud Vás cokoliv dalšího zajímá, neváhejte mě kontaktovat. Rád se s Vámi sejdu u kávy.