REZERVACE
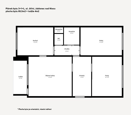
Exkluzivně nabízíme světlý byt 3+1 o výměře 68,5m2 s prostornou lodžií 4m2, ve třetím patře, který se nachází v klidné a vyhledávané lokalitě na ulici Jitřní, Jablonec nad Nisou. Byt je v osobním vlastnictví.
Byt se nachází v zatepleném panelovém domě s výtahem. Vlastní plynová kotelna. Energetická náročnost budovy: B.
Dům je čistý, udržovaný a působí příjemným, rodinným dojmem.
Byt prošel částečnou rekonstrukcí plastová okna i nové stoupačky. Díky zasklené lodžii si užijete klidné posezení s pěkným výhledem.
Dispozice bytu: předsíň (chodba), pokoj 12,3 m2, pokoj 12 m2, obývací pokoj 17,9 m2, lodžie 4m2 (jižní strana), kuchyň 10,4 m2, chodba, koupelna, WC a příslušenství mimo byt - sklepní kóje. Provozní náklady 4,337,- Kč/měs. + elektřina.
Lokalita: Ulice Jitřní je oblíbená pro svůj klid, dostatek zeleně a zároveň skvělou dostupnost veškeré občanské vybavenosti v blízkosti: školy a školky, obchody, lékaři, sportovní a volnočasová místa.
Jedná se o ideální volbu jak pro rodinu, tak pro ty, kteří hledají pohodlné bydlení na dobře dostupném místě. Volný ihned popř. dohodou.
S vyřízením hypotéky Vám rádi pomůžeme. Pro více informací a domluvení nezávazné prohlídky bytu neváhejte kontaktovat makléře.
CENA: 4.390.000 CZK

Jmenuji se Aleš Nachtnebl a narodil jsem se v Jablonci nad Nisou, kde žiji a mám to tu rád. Profesi realitního makléře se věnuji víc jak 20 let a dělám ji s radostí! Je pestrá, potkávám při ní zajímavé lidi a podívám se na různá místa.
Pro své klienty chci být vždy oporou, pomyslným parťákem a průvodcem při řešení všech problémů spojených s daným obchodem s nemovitostmi.
Při prodeji nemovitosti používám nejmodernější nástroje a postupy : staging a úpravu nemovitosti, profesionální fotografie, videoprohlídky, záběry z dronu, 3D plánky, půdorys nemovitosti, vlastní webové stránky nemovitosti, propagaci na sociálních sítích (facebook, Instagram, youtube atd.), a elektronickou AUKCI nemovitosti.
Všechny tyto moderní techniky a nástroje zajistí RYCHLEJŠÍ PRODEJ a ZA VYŠŠÍ CENU.
V realitách se pohybuji od roku 1998. I mé předchozí pracovní aktivity byly spojené s úctou a profesionálním přístupem ke klientům.
Pokud Vás cokoliv dalšího zajímá, neváhejte mě kontaktovat. Rád se s Vámi sejdu u kávy.